在這個追求品質與個性的時代,房屋裝修不再只是簡單的空間佈局與材料堆砌,它更是生活態度的展現,是對未來家居生活的美好憧憬。無論是新居的初次裝修,或是舊屋的翻新改造,每一步都蘊含著對家的深刻情感與期待。
在裝修的過程中,每一步都至關重要。從初始的風格定位、預算規劃,到材料選擇、施工監督,再到後期的軟裝搭配與保養維護,每一個環節都需要我們細心考量,了解並遵循正確的裝修流程和注意事項,不僅能夠讓裝修過程更加順暢,還能有效避免潛在的問題與糾紛,確保最終呈現出既符合我們的美學需求,又兼具環境。一、裝修前準備
1. 明確裝修需求與預算
包括確定裝潢風格、功能佈局和預期效果。制定合理的預算計劃,包括設計費、材料費、施工費、家具家電費等,並預留一定的應急資金。
2. 量房設計
邀請設計師上門量房,了解房屋結構和空間佈置。根據業主需求和預算設計出初步方案,並與業主溝通調整至滿意為止。
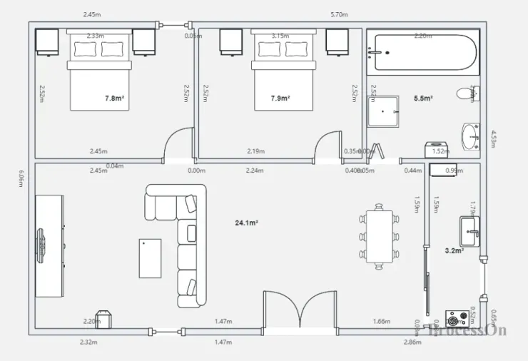
如果本身對房屋的設計佈局有自己的想法,可以使用工具設計簡單的平面草稿圖,下面是用ProcessOn流程圖內的平面圖圖形設計的兩居室平面圖,使用門檻低,不需要太大的學習升本就可以把理想中的房屋設計繪製出來。

3. 選擇承包方式
傳統的承包方式有:全包、半包與清包,隨著服務的完善,產生了新型承包方式:整裝、智慧家居裝潢等。

不同的承包方式之間都有不同的優缺點,可以結合自家的實際情況做出適合的選擇。
目前大多數人仍然選擇傳統的承包方式。
全包
優點:
省時省力省心:業主只需適時地與裝修公司溝通,監督工程的基本進度和質量,無需過多參與裝修的具體事務,非常適合忙碌的上班族。
設計施工整合:由裝潢公司負責設計、施工及選材,風格統一,整體效果更佳。
品質和環保有保障:裝修公司對材料品質和施工工藝有嚴格把控,且後期維護有保障。
責權清晰:一旦裝修出現品質問題,施工方的責任無法推脫,因為所有的工料都是他們負責的。
缺點:
市場選擇困難:裝修市場良莠不齊,辨識挑選正規裝修公司有一定難度。
價格不透明:一些不正規的公司可能會虛報價格或與材料商聯手作假,業主難以判別。
個人化受限:雖然整體效果好,但可能在個人化需求上有所妥協。
半包裝修
優點:
業主參與度高:業主可自行選擇主材,滿足個人化需求。
綜合性價比高:業主可以在購買主材時自主進行砍價,同時裝修公司負責施工和輔材,性價比較高。
裝潢進度可控:業主可以更清楚掌握裝潢進度,及時與裝修公司溝通調整。
缺點:
需要多操心:業主需要投入時間和精力去比較選擇各類裝潢材料,並進行砍價。
材料管理麻煩:材料購買多了浪費錢且無處存放,購買少了則耽誤工期。
對專業知識要求高:業主需要了解材料、施工方面的專業知識,否則容易吃虧上當。
清包裝修
優點:
自由度和控制力大:業主全權負責裝修的所有事務,包括設計、施工、選材等,可以完全按照自己的意願裝修。
經濟實惠:業主可以根據自己的經濟能力選擇材料和施工隊伍,有效控制裝修成本。
個人化強:裝修效果完全由業主自己決定,符合個人生活習慣和性格特質。
缺點:
投入時間和精力多:業主需要投入大量時間和精力去逛市場、了解行情、選材等。
對專業知識要求高:業主需要了解材料、施工方面的專業知識,否則容易買到高質次價的材料或難以應付裝修過程中的問題。
工期較長:由於所有事務都需要業主自行負責,裝修進度可能會受到影響,導致工期延長。
4. 材料的選擇與採購
裝修材料主要涉及地面,牆面,天花板和門窗,不論選擇哪種裝修方式,業主均需要對裝修材料的選擇進行深入了解,這樣才能做出最適合自家裝修材料的選擇,同時避免在和商家的溝通時上當受騙。

5. 選擇合適的裝修公司
透過查看公司資格、案例和客戶評價等方式,選擇經驗豐富、口碑良好的裝修公司。詳細了解合約內容,確保合約中涵蓋了所有的裝修項目和細節。
二、裝修環節
房屋裝修前的準備工作完成後,就要正式進入裝修環節了。

裝修是一門大工程,每個裝修環節都有很多事項要注意,基礎的注意事項有以下幾點:
1. 施工階段
選擇有資格的裝修公司或工人:確保施工品質符合標準,避免後製維修問題。
注意施工順序:依照裝修流程順序施工,包括拆改、水電改造、木工、泥工、安裝等階段。
注意施工安全:在拆改、水電改造等環節中,採取必要的安全措施,確保施工人員和業主的安全。
監督施工進度和品質:在裝修過程中進行監督,確保施工進度和品質符合預期。
2. 水力發電改造
確定水電定位:事先確定好各空間的水電定位,確保電線、水管的安全和合理佈局。
使用合格材料:選擇品質好的電線、水管等材料,確保使用安全。

3. 防水處理
做好防水工程:衛浴、廚房等容易積水的區域要做好防水處理,選擇高品質的防水材質。
進行注水試驗:防水完成後,必須進行注水試驗,確保無滲漏。
4. 安裝階段
注意設備安裝:家具、電器等設備的安裝要注意位置和固定方式,確保安全性和穩定性。
考慮使用功能:安裝時,要考慮設備的使用功能和美觀度,確保實用性和美觀性並存。
三、平面圖模板
在裝修前通常會簡單繪製家裡的平面圖,進行硬裝及軟裝設計, 在開工前做到心中有數,ProcessOn模板社區種有很多用戶設計的平面圖,你可以進行參考或者設計自己的平面圖。



以上就是關於房屋裝修的完整流程介紹,希望這篇文章能為您的房屋裝修之路提供有益的參考與協助。























