你可能也住在這樣的房子裡: 一樓悶臭油煙重、客廳昏暗像倉庫、樓梯口沒遮蚊蟲亂竄、每次洗衣.曬衣.收衣都得長途跋涉,這不是生活,是妥協 !
這次我們接手的老屋翻新案,就是一場「生活品質的革命」。 不只刷漆、換磁磚,而是從格局、動線、採光、通風、管線到生活習慣全面重塑。

新加坡式建築:不是風格,是生活策略。
這次翻新選擇「新加坡式建築」作為核心概念。它不是某種裝潢風格,而是一種空間哲學,讓生活回到該有的位置。它是想把車庫塞進透天,又能兼顧「住得舒服」的良藥。
新加坡式建築的特色:
• 停車空間在一樓,通風採光好,出入方便
• 公設比低,社區不堆疊不必要設施,管理費自然降低
• 樓層不高,多為五層電梯公寓或九層內華廈
• 客廳與廚房在二樓,成為生活重心
一樓|不再硬塞生活,而是重新定位角色
原本的一樓是典型的老透天格局:但現在前面有停車需求,後面是廚房,客廳被夾在中間,光線、空氣、空間都被壓縮。
當初場勘走進屋內即觀察到不少老透天常見的問題:
- 業主一樓想放車庫,客廳空間和自然採光會嚴重不足
- 樓梯口為開放式無法阻隔停車廢氣,蚊蟲鼠蟑可輕易地竄上二樓
- 原廚房在一樓後方房間,油煙味明顯顯示排氣機能不足(悶臭)
- 洗曬空間在日照不足的一樓後陽台,且鄰戶全面外推導致通風不良(悶濕)
一樓平配圖前後對比
原本的一樓是典型的老透天格局:但現在前面有停車需求,後面是廚房,客廳被夾在中間,光線、空氣、空間都被壓縮。
• 我們的第一步,是「取捨」——不把生活硬塞在一起。
• 滿足車庫需求之虞,樓梯口加裝隱形紗門與隔間,阻絕廢氣與蚊蟲
• 原廚房改為衣帽間、儲藏室、將來的孝親房,空間使用彈性高

一樓的前後平配圖對比
一樓變成「綠葉樓層」,支援生活但不干擾生活
這不是退讓,而是戰略性撤退。 讓生活的主舞台,搬到真正適合的地方。
二樓|生活的重心,應該有光、有空氣、有互動
我們把客廳和廚房搬上二樓,也是新加坡式建築的精髓
二樓的前後平配圖對比:

• 拆除非結構牆,客廳空間延伸到樓梯區,視覺放大
• 廚房緊靠外牆,油煙直排,機能升級
• 僅設半套衛浴,空間更舒適
• 梯間廊道間接照明設計,為晚歸家人留一盞燈
這一層,成為全家人的生活核心:吃飯、聊天、追劇、互動,全部在這裡發生。
且不讓客廳再像房間,真正有了「廳」的氣度。
改造新加坡式的關鍵:隱形工程才是工夫
廚房搬到二樓不像客廳單純換個位置這麼簡單
• 廚房水槽排水路徑是第一關鍵,排水路徑、地坪高度都要精算
• 水電配管需大量牆面與地面開管溝,會衍生地坪工程
建議地坪打除見底,配管後再重鋪地磚,未來清潔也更輕鬆
新加坡式建築的美好,是靠這些「看不見的細節」撐起來的。
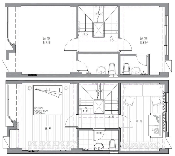
三樓|主臥+多功能室,業主的起居重心
主臥+主浴+多功能室(工作室/更衣室/育嬰室)
採光通風佳,動線合理,使用彈性高
三樓的前後平配圖對比:

我們針對問題屋況進行重點翻修:
• 壁癌處理+牆面批土+木地板,空間溫潤有感
• 加設網路與WIFI線路,現代生活『剛需』到位
這一層,是生活的靜謐基地,也是機能最完整的私人領域。
四樓|儲藏室的重生,成為全棟最適合的洗曬空間
• 拆除鐵皮屋頂,恢復挑高與大窗,日照通風最大化
• 防水工程不馬虎,地面、牆面、窗邊全面處理
• 配置洗衣機、洗衣槽、熱水系統,機能完整
• 鋼骨玻璃採光罩+雙桿升降吊衣桿,曬衣不再是苦差事
這裡不再是堆雜物的角落,而是家務最舒適的基地。 寢室、浴室緊鄰曬衣間,洗衣、曬衣、收衣,生活效率大提升。
必須再強調一次,老屋翻新不僅僅只是室內設計,而是從根本養起,讓老房子各方面都能新生。
外牆拉皮|防水到位,質感升級
外牆、窗邊到頂樓露臺,全面施作多道防水工序,確保表面材質不只是好看,更耐久。
業主一眼相中崗岩漆,雖然預算多出三分之一,仍果斷選用。
完工後外觀乾淨明亮,質感直接拉滿,與鄰居形成鮮明對比。
看著完工後的效果,外觀乾淨明亮,對比鄰居原有的二丁掛,效果太值得了。
管道間設計|解決老透天的通病
• 衛浴上下垂直配置,不怕排水低噪音
• 冷熱水统一一套系统(水塔供水)
日後加装加壓、淨水、軟水系統都很方便
• 冷熱水、排水、通氣管集中走最短路線
省工又省料,熱水來得快,能源效率高
• 排水與通氣改做倒吊管(樓板洗洞),減少樓板墊高
• 衛浴即使沒窗,只要預留通氣管也能保持乾爽
• 馬桶冒泡問題也能透過加裝通氣管有效改善
這些完工後不容易看見的工法,但卻決定了生活的舒適度。
完工後美照展示 ✨
以下帶大家快速欣賞改造後的空間亮點:
- 1F 車庫與玄關:整齊俐落,動線清楚,車位與收納一次到位。
- 2F 客廳與廚房:牆體拆除後的開闊感,大面採光灑入,公共空間舒適明亮。
- 3F 房間:牆面透批後平整光滑,搭配木質地板,營造安靜溫潤的氛圍。
- 4F 房間&曬衣間:白牆與新窗戶,通風採光全面升級。
- 外觀立面:防水與崗岩漆完工後,整體外觀乾淨明亮,完全看不出是老透天。

結語|翻新的不只是房子,更是你的生活方式
這場翻新,不只裝修,而是重新分配生活的重心。 從動線、採光到使用習慣,我們在原有格局裡,找到最適合居住者的空間節奏。不會一股腦兒只想著增建(很燒錢啊)。
• 一樓支援生活,增添生活質感厚度
• 二樓互動核心,光線通風到位
• 三樓靜謐舒適,機能完整
• 四樓洗曬動線順暢,有日照能殺菌又通風
幾乎每個老屋翻新的業主預算都有限,因此更要懂得『翻得聰明』:不堆滿裝潢,
而是把錢花在生活重心與使用頻率高的空間;空間不怕留白,要有彈性、進可攻、退可守。
你不需要再買一棟豪宅,也許早就擁有不錯的空間條件。
新台幣沒有變不見,只是變成每天醒來都喜歡的空間。
一新室內設計/專攻老屋全屋翻新
📸 Facebook 粉絲專頁(除了文章還有短影音)
📩 聯繫方式
Line ID:doublebig717
電話:0919 785 264





















