我和老婆在國外留學時相識,交往、結婚到現在差不多15個年頭,也終於實現當初一起說好的理想,完成一棟屬於自己的夢想之家!我們當了滿久的存錢仔,換了人生第二間、更大的房子,準備帶著寶貝孩子和狗狗一起搬新家。(第一間房子算過渡期,空間比較小,現在小孩大了需要獨立房間)
沒有意外的話,這棟新家我和老婆打算住一輩子,所以在裝潢上精雕細琢,想要打造我們很喜歡的現代美式風!以前在國外租屋,我們兩人最喜歡這種風格!
▼房子是5樓透天車庫別墅,有電梯!內部就是白牆,等著設計師幫我們規劃設計。





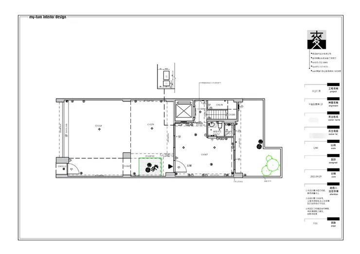
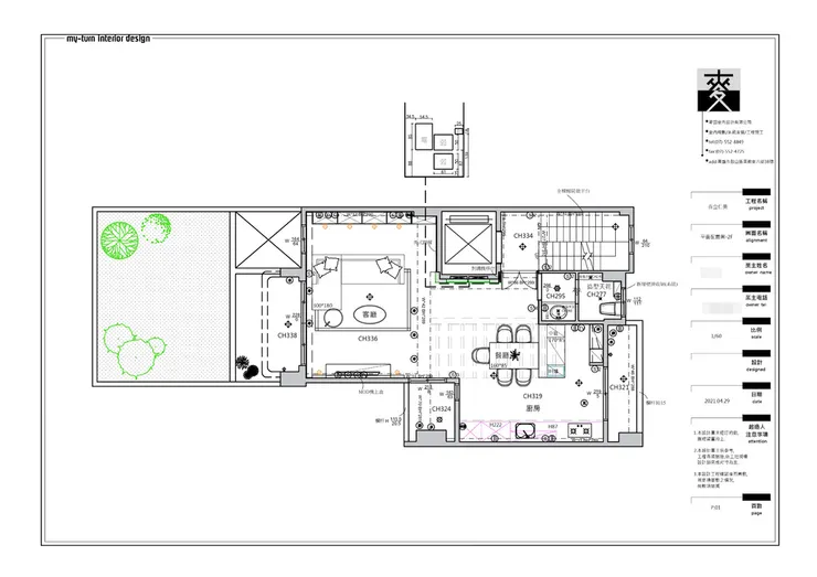
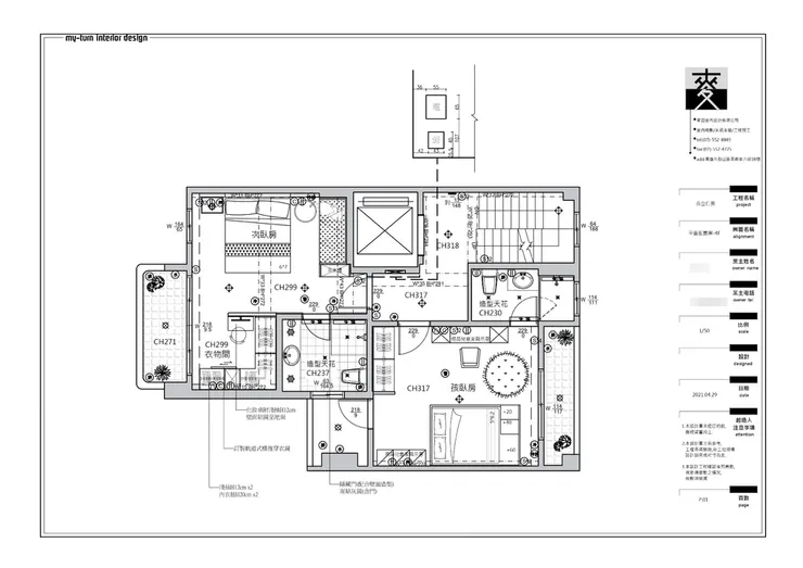
│平面配置圖
設計師我們是第二次合作,先前合作很愉快,也足夠了解我們喜歡的風格。裝潢主要集中在2~4樓,客廳/廚房/主臥/次臥/小孩房,算是錢花在刀口上XD

▲一樓配置。

▲二樓配置。

▲三樓配置。

▲四樓配置。
│施工過程
做了相當大量的木工,我們想要的東西基本上只能客製化,很感謝設計師和師傅成功做出來!
▼我老婆最愛這咖👇美式中島櫃!由木工師傅手工訂做而成,弧度,還有那個桌腳,超美的!我們就是喜歡這種獨特的東西,外面買不到!


▼玄關樓梯電箱做了格柵木牆裝飾。

▼拉起來裡面自成一個空間,外面則當會客廳,公私領域比較分明,還有防止冷氣外流的功能。

▼其他木工細節,美式線板等等,做工很好!家的全貌漸漸成形,非常期待!





▼和設計師一起挑選樣式。
人造石比天然石價格親民很多,而且容易清潔,外型也和天然石材相似,預算有限的話滿推薦先從人造石下手。

▼義大利進口花磚。我老婆超愛!家裡一下子有特色了起來!

▼桌面容易因為長時間使用而磨擦,故設計師推薦採用富美家仿大理石紋樣式美耐板跳色做變化,兼具實用和美觀。

▼主臥室化妝檯面也是使用富美家仿大理石紋樣式美耐板。

▼電視牆貼磚(進口美式經典文化石磚)。

▼木作書櫃噴漆。很喜歡這個藍色,不會過嫩或過沉,很輕盈的感覺。

▼一些牆面做壁紙裝飾,細看紋路很漂亮很有質感,老婆和設計師精心挑選過XD

▼後面就是裝潢後清潔、裝燈具、進家具等等,整個裝潢工程差不多6個月,感覺過得好快又好慢,每天對新家的期待值節節攀升,終於到了交屋的時候!!

│完工
客廳
開門當下…OMG!!!這完全就是我們要的感覺,乾淨、清爽、休閒,濃郁的現代美式風格,有種把以前在國外住的房子直接搬到台灣的感覺!!甚至更頂級!所有配置都符合我們的心意!

▼白色落地百葉窗(百麗樂豪華百葉窗),白天時透進和煦陽光,整個客廳光線明亮宜人,現在成為我和老婆最喜歡待的地方。

▼後面是整面大書櫃,上半部開放式,下半部抽屜和門櫃。藏書還在整理中,目前大部分都是童書,少一本孩子還會跟我們急🤣(書櫃以木皮染處理,可以看見木頭紋理,是和設計師討論過比較特別的做法,很喜歡最後的成果!)

餐廳廚房
恰到好處的開放式廚房,功能齊全,也不會太大不好整理維持。頭頂上的格柵天花板設計,也讓整個空間更加有層次、活潑,每個來家裡的朋友都說很美!

▼木作客製化的美式中島櫃,漆上輕盈的藍,搭配格子櫃門以及青花瓷復古進口花磚,整體氛圍清新卻不會過分甜膩。

▼小孩不在家被爸媽帶出去玩時,我們兩人的最佳早午餐之處。

▼中島側邊配置插座,想要在這裡用筆電辦公也很便利。(中島做法同樣也是以木皮染色處理,保留了木頭自然紋理。)

主臥室
整層三樓都是我們的主臥室,包含寢室、小客廳、更衣室、主臥衛浴、活動空間等等,是以前舊家無法想像的寬敞!也保有我們夫妻私人的空間。

▼電視牆只放了音箱,喜歡回到臥室內是靜靜聽著音樂,享受打理自己或是相處時靜謐溫馨的時刻。

▼更衣室衣櫃做了很多不同的高度,衣物配飾、行李箱都能好好收納,也做了抽屜斗櫃,一部分空間用來收納我家狗狗的用品。


小孩房
裝潢上除了造型油漆(綠色部分圖案是以油漆繪製處理),佔大部分就是主牆面的壁紙還有木地板,畢竟小孩現在年紀還小,簡單童趣即可,其他長大再添!

▼順便感嘆一下,他終於擁有自己的房間了🤣會這麼說是因為以前舊家玩具滿屋飛,時不時有挖寶的感覺,這裡出現他的小飛機、那裡找到他的小汽車,現在可以全部收納在他的獨立房間。

次臥
因格局關係,浴廁與睡眠區距離(過道)太擠,於是設計師提出利用灰鏡造型壁面規劃,將狹窄問題虛化,使空間呈現放大效果。我們自己很喜歡!國外很多房子會這樣設計,空間看起來有兩倍大,雖然我爸媽一直唸說床怎麼對鏡子,不過自己喜歡最重要不是嗎~哈

最後來一長串美照賞析XD我去房間聽音樂了😎開箱結束bye!
























房子:新成屋5樓透天車庫別墅
坪數:地坪55坪、建坪155坪
裝潢材料:天然實木皮、美式線板、文化石磚、進口花磚、韓國LG人造石、日本進口壁紙、美式百葉窗、造型壁燈及吊燈等。
設計公司:麥田室內設計
地址:高雄市鼓山區美術南六街38號
電話:07 552 8849
























