
台中老屋翻新推薦【麥斯設計室內裝修】45年老屋翻修成現代美宅
為表哥開心~~
既表姊之後,表哥也成家立業買厝啦!!
我最近去拜訪了他們,對他們的新家留下了深刻的印象。
雖然是45年老房子,但勝在空間大,不用擠在小公寓裡,老屋翻新原來也可以住得很舒適!
其實老屋翻新挺不簡單的,要考慮的細節很多,也不是每個設計師都有能力承接。表哥說他後來是找表姊合作過的麥斯設計師,有表姊牽線加上有表姊新家示範場😆表姊很推薦麥斯設計的施工品質與態度,整場深入討論後讓他很放心交給麥斯設計翻修。

台中老屋翻新推薦【麥斯設計室內裝修】45年老屋翻修成現代美宅

台中老屋翻新推薦【麥斯設計室內裝修】45年老屋翻修成現代美宅

台中老屋翻新推薦【麥斯設計室內裝修】45年老屋翻修成現代美宅
👇先放幾張漂亮的完工照,鋪陳一下~
新家整體是很舒服的大地色系,採光也好棒,艾薇我做客後就想賴著不走,尤其是主臥的大浴缸,羨慕炸我😍

台中老屋翻新推薦【麥斯設計室內裝修】45年老屋翻修成現代美宅

台中老屋翻新推薦【麥斯設計室內裝修】45年老屋翻修成現代美宅

台中老屋翻新推薦【麥斯設計室內裝修】45年老屋翻修成現代美宅

台中老屋翻新推薦【麥斯設計室內裝修】45年老屋翻修成現代美宅
👇再來是一些施工分享,表哥說他收到快千張施工照片,深刻體會老屋翻新很不容易,如果不是請到專業設計師一把罩,真不知何年何月才能入住…

台中老屋翻新推薦【麥斯設計室內裝修】45年老屋翻修成現代美宅

台中老屋翻新推薦【麥斯設計室內裝修】45年老屋翻修成現代美宅

台中老屋翻新推薦【麥斯設計室內裝修】45年老屋翻修成現代美宅

台中老屋翻新推薦【麥斯設計室內裝修】45年老屋翻修成現代美宅
👇我也是濃縮放幾張施工照,老房子拆除到重牽管線到灌漿等等,看得簡單做得難,光是管線設計就繞暈我了!!

台中老屋翻新推薦【麥斯設計室內裝修】45年老屋翻修成現代美宅

台中老屋翻新推薦【麥斯設計室內裝修】45年老屋翻修成現代美宅

台中老屋翻新推薦【麥斯設計室內裝修】45年老屋翻修成現代美宅

台中老屋翻新推薦【麥斯設計室內裝修】45年老屋翻修成現代美宅

台中老屋翻新推薦【麥斯設計室內裝修】45年老屋翻修成現代美宅
老屋原本就1F地板滲水問題,翻修過程中又發現新問題(隔壁頂樓牆壁滲水),老屋翻修時會有各種狀況發生,而且問題點常常會在拆除後才能找到原因,真的需要有經驗的設計師才可以對症下藥,表哥說越想越覺得自己很幸運,找到經驗豐富的設計師用心處理所有問題!!
👇第一個地方是頂樓:
因為頂樓鐵棟原先高度在隔壁的樓板之下,加高更新後在隔壁樓板之上,但完工後發現牆壁下雨後會滲水,依設計師多年施工經驗判斷為隔壁樓板交接縫滲水進壁內,又補做了隔壁牆面與地面防水根治了這個問題。

台中老屋翻新推薦【麥斯設計室內裝修】45年老屋翻修成現代美宅

台中老屋翻新推薦【麥斯設計室內裝修】45年老屋翻修成現代美宅

台中老屋翻新推薦【麥斯設計室內裝修】45年老屋翻修成現代美宅

台中老屋翻新推薦【麥斯設計室內裝修】45年老屋翻修成現代美宅

台中老屋翻新推薦【麥斯設計室內裝修】45年老屋翻修成現代美宅

台中老屋翻新推薦【麥斯設計室內裝修】45年老屋翻修成現代美宅

台中老屋翻新推薦【麥斯設計室內裝修】45年老屋翻修成現代美宅
👇第二個地方是一樓廚房:
表哥說一樓廚房地板下雨後地面會冒水,拆除後找問題,發現是與鄰棟共用雨水排水管有裂縫導致滲水至牆面後再流至地板,所以下雨後地板會冒水,處理後經一段時間觀察已無冒水狀況。

台中老屋翻新推薦【麥斯設計室內裝修】45年老屋翻修成現代美宅

台中老屋翻新推薦【麥斯設計室內裝修】45年老屋翻修成現代美宅
老屋拆除後狀況很多,工期到入住超過一年之久,但表哥說等待非常值得!
👇看到前後對比,根本想像不到這原本是自己買的老房子!!
我也是很愛老屋翻新的驚喜感❤️全部煥然一新,每次看都是十足的驚艷!

台中老屋翻新推薦【麥斯設計室內裝修】45年老屋翻修成現代美宅

台中老屋翻新推薦【麥斯設計室內裝修】45年老屋翻修成現代美宅

台中老屋翻新推薦【麥斯設計室內裝修】45年老屋翻修成現代美宅

台中老屋翻新推薦【麥斯設計室內裝修】45年老屋翻修成現代美宅

台中老屋翻新推薦【麥斯設計室內裝修】45年老屋翻修成現代美宅

台中老屋翻新推薦【麥斯設計室內裝修】45年老屋翻修成現代美宅

台中老屋翻新推薦【麥斯設計室內裝修】45年老屋翻修成現代美宅
👇房子是新加坡式透天,一樓前面是車庫,設計師規劃一座系統鞋櫃,增加了收納功能,出入也不會弄髒室內空間。

台中老屋翻新推薦【麥斯設計室內裝修】45年老屋翻修成現代美宅
👇廚房也在一樓,設計簡約大方,兼具實用和美觀,有效利用空間,配備了各種電器,可以滿足日常的烹飪需求。

台中老屋翻新推薦【麥斯設計室內裝修】45年老屋翻修成現代美宅
👇燈具巧妙地融入整個室內裝潢中,為廚房增添個人風格。

台中老屋翻新推薦【麥斯設計室內裝修】45年老屋翻修成現代美宅
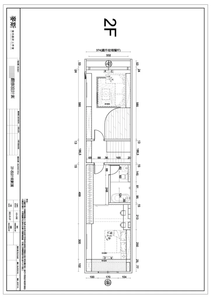
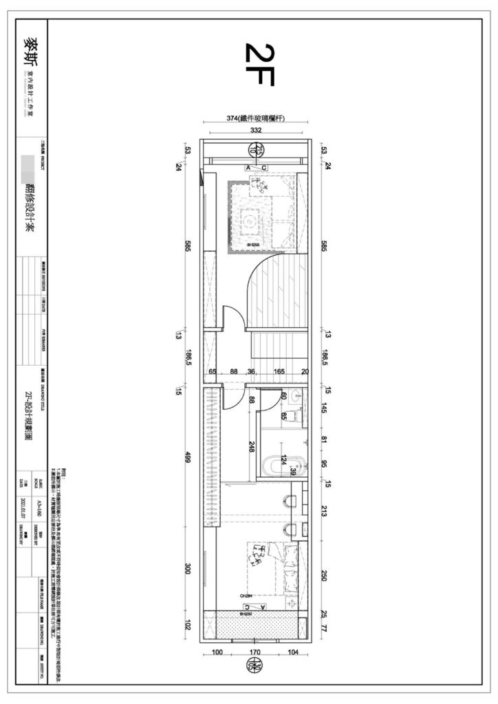
👇走上二樓才是客廳。

台中老屋翻新推薦【麥斯設計室內裝修】45年老屋翻修成現代美宅
👇大大的落地窗,可以將外面的陽光引入室內。

台中老屋翻新推薦【麥斯設計室內裝修】45年老屋翻修成現代美宅
👇恰到好處的系統櫃配置,適當留白保留了更充裕的空間感。

台中老屋翻新推薦【麥斯設計室內裝修】45年老屋翻修成現代美宅

台中老屋翻新推薦【麥斯設計室內裝修】45年老屋翻修成現代美宅
👇系統櫃的挖空設計,不僅能為小角落帶來溫暖的光線,也能為原本沒有玄關的空間增添溫馨的氛圍。

台中老屋翻新推薦【麥斯設計室內裝修】45年老屋翻修成現代美宅
👇主臥室
玻璃拉門維持空間通透性,並兼具實用性,阻隔冷氣溢散。

台中老屋翻新推薦【麥斯設計室內裝修】45年老屋翻修成現代美宅
👇系統衣櫃是偏穩重的胡桃色,耐看永不退流行,還能存放很多衣物和雜物。

台中老屋翻新推薦【麥斯設計室內裝修】45年老屋翻修成現代美宅
👇雙書桌設計,表哥表嫂各自擁有私人桌面不打架!

台中老屋翻新推薦【麥斯設計室內裝修】45年老屋翻修成現代美宅

台中老屋翻新推薦【麥斯設計室內裝修】45年老屋翻修成現代美宅
👇樓梯空間充分利用,一座系統櫃,未來有小孩也不擔心缺少收納空間。

台中老屋翻新推薦【麥斯設計室內裝修】45年老屋翻修成現代美宅
👇三樓衛浴。

台中老屋翻新推薦【麥斯設計室內裝修】45年老屋翻修成現代美宅
入住新家後,表哥和表嫂都非常滿意!他們說新家的空間寬敞舒適、採光良好,是個寧靜的小社區。
總而言之~我也非常喜歡表哥的新家,不僅裝潢溫馨舒適而且功能齊全,我相信表哥一家在這裡一定會生活得非常幸福!也希望表哥的新家分享,能夠幫助正在購屋或裝潢的朋友們❤️
台中老屋翻新推薦
地址:彰化縣彰化市泰和路一段114號
電話:0986 620 609
LINE:@325dxwgp
粉專:https://www.facebook.com/3dsmaxstudio






















