前言
這間坐落在台北市大安區的公寓4樓物件,是我們在2018年底偶然間在售屋網站上看到的,這物件在各方面皆符合我們的需求,包括:
- 交通便捷,離捷運站僅需步行六分鐘,公車路線也多
- 鄰近國小國中及公園綠地,遛小孩不成問題
- 巷口就有全聯和7-11
- 室內超過30坪的使用空間
- 標準三房兩廳兩衛前後陽台的國泰格局
- 位在邊間三面採光,各房間廁所皆有對外窗,且後陽台棟距大
- 對面有都更改建規劃,未來街道環境質感可望提升
最重要的是,這間物件開價僅每坪50多萬元,雖然還是有老公寓的一般缺點如屋齡超過40年,以及上下樓皆須爬四層樓等,但在和老婆討論後, 在一時衝動下就決定出手買下此物件,成交價在2023年的今天看起來似乎是不可思議的每坪不到50萬元!

自己繪製的原始平面圖
自用轉為出租
在順利買下此物件後,才回神來好重新思考是否真的要搬家。經過一番務實考量下,決定暫時繼續住在老家的小公寓,等小朋友長大一點空間真的不夠時再說。
因此我們決定先把房子出租,至少在已經梭哈存款支付頭期款後,用租金去cover房貸才不會壓力過大。很快地也順利出租給一個家庭,在前三年還息不還本的情況下,每月還有近1萬元的正現金流,一切都還算在我們的掌握之中。
起心動念做改裝
很快的三年過去了,房貸進入本利攤還的階段,這時我們雖然順利小漲了2,000元租金,但已不再有正現金流,因此我們開始思考該處理這間房子。我開始在網路上找尋靈感,經過一段時間的學習,開始對於共生公寓分租、隔間套房出租或分戶出租等不同模式皆有了一些了解,這幾個模式相較單純的整戶出租確實都可明顯提高收益,但分別有其優缺點:
- 共生公寓分租:改造所需資金最低 (約50萬元上下),但須同時管理多組房客,所需付出的管理成本最高,基本上算是賺取營運財。
- 隔間套房出租:改造所需資金最大(至少200萬元以上),且增設兩間以上廁所就必須取得直下層同意書,有一定的難度。雖然也要同時管理多組房客,但相較共生公寓的管理輕鬆一些(至少不太需要處理房客相處不來的問題),最重要的是採用此模式可有效最大化租金收益。
- 分戶出租:改造所需資金介於隔間套房出租與共生公寓分租之間,例如將一個公寓物件分為兩戶 (兩個大門獨立進出),就無需新增廁所或僅需增加一間廁所。此模式各分戶之空間皆有自己的客餐廳、廚具、廁所、及一到兩個房間,因此租客通常會是以情侶、小家庭或者是親友合租,其穩定性及自主性會較前兩個模式高一些,同時僅需管理兩組租客,管理成本也低許多。
在經過充分考慮及分析利弊得失後,決定通知現有房客2023年2月底租約到期後不續約,我們要拿出真金白銀,以分戶出租的模式來裝修這間房子,也開始運用自身專長,開始規劃分戶的格局。
圖面規劃階段
規劃分戶平面圖可說是決定未來招租容易度及收益率的關鍵點,規劃時要在裝修成本與預期租金收入之間取得平衡點,並時時站在租客的角度思考,那些規劃是租客喜歡的,那些是可有可無的,那些是要避免的。在原租客租約到期前三個月,我便開始思考該如何規劃分戶平面圖,我自己訂定的幾個基本原則包括:
- 每個房間都要有對外窗,且都擺的下雙人床、桌椅組及衣櫃。
- 客廳面寬至少有3公尺以上。
- 配備廚具及洗水槽(必須鄰近現有廁所以利排水)。
- 公共空間走道盡可能最小化。
- 最重要的是:能不動現有格局就盡量不動,以降低裝修費用。
我自己經過幾次的修訂,終於做出第一版平面圖(如下圖),提供給裝修廠商做調整及評估。這版本大致上都有滿足上述的原則,其中三個房間、兩間廁所及廚房都維持不變動,主要的調整,便是把前陽台外推做為增設房間的空間,同時新設有內襯隔音棉的隔間牆來隔出兩戶及走道,在左戶還新設廚具料理區。

第一版本的分戶平面圖
然而這樣的規劃拿給裝修廠商並經過來回討論後,發現有幾個明顯的缺點:
- 新增的房間必須要用到前陽台空間,這樣將使得左戶沒有陽台,這樣一來除了洗衣機只能放在室內,也沒有可曬衣服的空間。
- 兩戶的客廳都很小,與其說是客廳,更像是個過道空間。
- 左戶的客廳採光完全被新設房間擋住。
- 公共空間走道長顯得浪費。
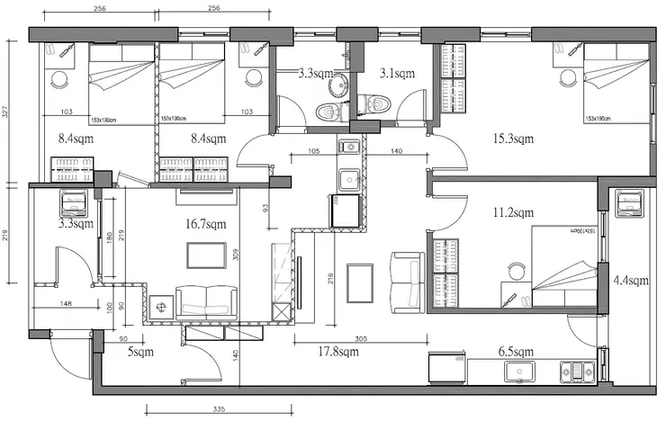
經過幾次改版,最終版本平面圖終於在2023年2月份定案,此版本平面圖如下所示。

此版本與前面的版本相比,最大的突破是我們將左戶的房間一分為二,且這兩個房間皆有對外窗、功能也都完整。也因為如此,兩戶的客廳空間都可放大,且具有自然採光通風,此外,公共空間也可最小化,以這種大門開在最前方的原始格局來說,已經是很棒的設計了。
裝修施工-家具進場-招租
2023年2月農曆年後裝修工程報價單也隨之定案,並於3月上旬正式開工,經過約 1個多月的施工,順利的於4月中旬完工,家具也在兩周內陸續進場並完成組裝,也搭配了幾本外文書及老婆特別採買的幾盆假盆栽作為軟裝飾品,讓整體屋況質感更加提升。
很幸運的,右戶於5月初便順利出租,左戶也在5月下旬出租,至此本專案順利完成,總租金收入是原租金的接近翻倍,而裝修費用加家具費用預計四年回本,本案的年報酬率約24%,還算蠻不錯的投資效益。

原客廳進行拆除作業中

裝修後左戶客廳及廚房空間

裝修後右戶客廳及廚房空間



















