一、正式入選
在6月11日,古厝Go True 正式成為進駐團隊,進駐地址為台北市大安區龍泉街112-1號2樓。
-二、計畫正式啟動前的會議
在宣告正式入選前,主管機關和執行機關召集了4個團隊,除了讓不同團隊彼此認識以外,也要開始制定社區公約。
計畫主持人邀請大家用工作坊的方式認識彼此,我們要找其他團隊的4個人,分別請他們畫出自己臉上其中一個器官,畫完之後在紙上簽名,沒有繪畫天份的我只能硬著頭皮上了!
畫完圖,讓我們每個人都做了DISC心理測驗,讓我們知道自己像是四種動物(老虎、孔雀、無尾熊、貓頭鷹)的哪一種。
緊接著,古風里的里長到來,每個團隊開始將自己當初評選的簡報內容再報告一次給里長聽。
在這個半天的活動中,團隊間的生活公約也漸漸形成。
-
三、場地勘查 - 在動工之前
成為了實際的場地進駐者之後,我們就要開始來規劃自己想要怎麼去處理空間了,於是我們先去現場勘查一番。
-
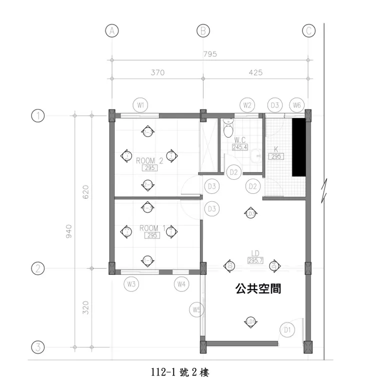
場地平面圖
先讓我們來看看場地平面圖。
-

古厝進駐地點平面圖
-
Room 1 我們打算設計成烘豆工作室,裡面會放一些咖啡相關的貴重器材,諸如手沖器具等,而其中的最大主角就是烘豆機了!
Room 2 我們打算設計成辦公室,可以讓有需要的夥伴在裡面工作、開會。
廁所維持不變,但會更新馬桶和洗手台,並把浴缸給拆掉。
廚房經過整理後,打算放一台冰箱到裡面。
而整個空間中我們最重視的,莫過於足夠大的公共空間,在這邊我們會做一個簡易吧台,放上夥伴找到的雙孔義式咖啡機和磨豆機,剩餘的部分會拿來辦活動使用,只要擺好桌子椅子,就是一個絕佳的互動場合,也是我們共享精神所在之處。
我們想打造出一個社區的客廳。
-
現場照片
我們在現場拍了許多照片,在動工之前,真的是廢墟般的模樣。
-
-
而下一步,就是等待改造工程開始。
這裡是我的生活雜談區,不定期分享一些工作以外的生活體驗,
若您喜歡我的文章,歡迎用愛心和拍手支持我!























