在裝修過程中,許多高度都有一組「看起來很專業」的標準數字。但真正住進去之後,很多人心裡都浮現同一個疑問—— 為什麼照做了,卻沒有比較舒服?原因往往不是設計錯誤,而是高度本來就無法套用在每一個人身上。尤其在室內空間,高度牽動的是每天重複發生的動作,而不是圖面上的尺寸。
人體工學的高度,為什麼不能套用在每一個人身上?—— 室內空間裡,最常被忽略的「不舒服來源」很多設計文章、裝修建議,都會告訴你一組「標準高度」:桌子 75 公分、廚房檯面 90 公分、開關 120 公分⋯⋯。
但真實的生活經驗往往是——原因很簡單,照表做了,卻越用越不對勁。原因很簡單,人體工學的數字,本來就不是給「每一個身高」通用的。尤其在「室內空間」,高度牽涉到的不是尺寸,而是每天反覆發生的動作。

網路與論壇,最常被討論的「高度問題」
在設計論壇、裝修社團、使用者分享中,只要談到「不舒服」、「後悔」、「用久很累」,幾乎都會回到高度這件事。以下是最常被提出來的幾個位置。
1)桌面高度(餐桌/書桌/工作桌)
- 標準高度多半落在 72–75 公分
- 但實際問題是:
- 手肘無法自然垂放
- 肩膀不自覺聳起
- 長時間使用容易痠痛
👉 討論裡最常出現的一句話是:「不是桌子不好,是它不適合我的身高。」
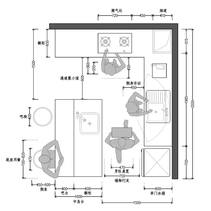
2)廚房檯面的高度
這是後悔率最高的高度之一,常見狀況包括:
- 洗菜、切菜要彎腰
- 用力時手腕角度不對
- 站久腰背壓力集中
標準高度多落在85-90公分,但許多論壇會提到:
👉 檯面高度應該跟「手肘高度」有關,而不是單一數字。

4)吊櫃、層板、收納高度
設計圖上看起來剛好,實際生活卻是:
- 最常用的東西放在「要踮腳」的位置
- 重物必須舉高手臂取放
- 乾脆放棄使用上層櫃
👉 高度設計若只看「能不能放」,而沒看「常不常用」,問題一定會出現。
5)插座、開關、控制面板
這類高度常被忽略,但每天都在用。
論壇常見抱怨包括:
- 插座太低,年紀漸長越來越不想彎腰
- 開關位置順手,但對另一位家人卻不順
- 清潔、維修時才發現高度不合理
👉 這些高度,其實跟年齡變化也有關。

真正該問的不是「標準高度」,而是這些問題
人體工學真正的核心,從來不是數字,而是——你是誰?你怎麼用?你會用多久?
與其問:「標準高度是多少?」
不如先問自己:
- 我的身高、手長、站立或坐姿習慣是什麼?
- 這個空間,是每天用?還是偶爾用?
- 5 年後、10 年後,我還會想這樣彎腰或踮腳嗎?
高度一旦做錯,最常見的結果不是馬上出問題,而是「慢慢習慣不舒服」。你可能會忍、會調整姿勢、會告訴自己沒那麼嚴重,但身體其實一直在承受。所以在裝修前,與其背誦標準尺寸,不如先問清楚: 這個高度,真的適合我的身高、我的使用方式、我的未來嗎?這也是為什麼,設計之前,先為自己做一次高度檢核,會比任何標準更重要。
自我檢核表單
為了讓高度不只停留在概念,我整理了一份 〈適居高度自我檢核表〉不用提交。這不是在測你記不記得標準尺寸,而是引導你回到自己的身高、使用習慣與每天重複的動作,逐一檢視哪些高度其實需要為自己調整。 填寫的過程,本身就是一次「站在未來生活裡」重新看空間的練習。
延伸閱讀文章:
- 居住適配諮詢:在買房、客變、翻修前,用經驗預見適合您的人生空間
- 裝修最常後悔的不是風格,是這些「當初沒想清楚」的地方
- 多功能房真的實用嗎?住進去之後才知道的事
- 別等搬進去才後悔!書房/書櫃最常見的 8 大錯誤與檢核表
- 小孩房規劃,真正困難的不是設計, 而是能不能接受「未來一定會變」。
- 把生活放進設計裡:重新看懂主臥室與臥室規劃這件事
- 電視牆(櫃)怎麼規劃,才不會入住後一直後悔?
- 系統櫃變形鬆動?關鍵在規劃與施工,五大重點讓你避免隱性風險
- 電器櫃怎麼規劃才不會出問題?使用者最常踩的地雷整理
- 餐邊櫃規劃必看:解決收納、電器、動線三大困擾,打造餐廳機能核心
- 預售屋客變:避免入住後才後悔的7大關鍵點與決策指南
- 居家設計「中島」規劃必看!優缺點、後悔關鍵一次整理
- 小宅收納術:告別高櫃,擁抱實用儲藏室
- 小宅放大術:住起來舒適且顯大的空間規劃技巧
























